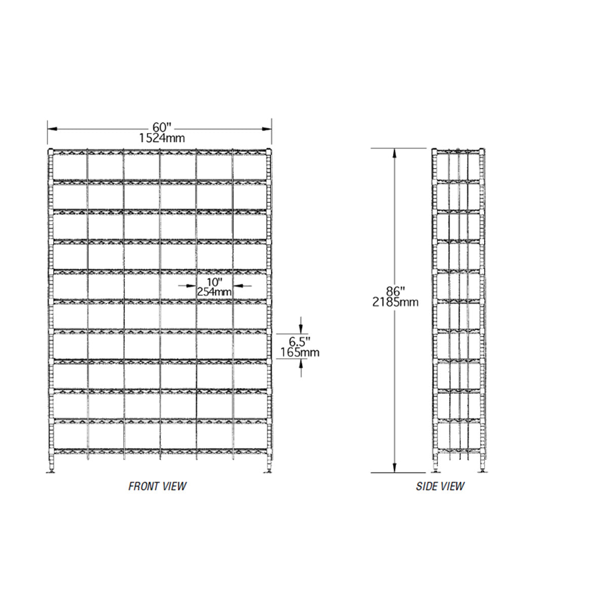
Wire shelves offer the optimum combination of laminar flow and ventilation for the storage of cleanroom shoes. Rods and tabs run through the shelves to create cubbies for each pair of shoes. Optional snap-on plastic label holders are available for the identification of each storage unit. Available finishes are chrome and stainless steel. Foot plates are included for fastening the unit to the floor. 14: wide, ranging in lengths from 24: to 72", and up to 86" in height.
SPECIFICATIONS
| Chrome Model | SS Model | Weight | Width | Length | Number of Cubbies | |||
|---|---|---|---|---|---|---|---|---|
| lbs. | kg | in. | mm | in. | mm | |||
| SR1436C | SR1436S | 133 | 60.3 | 14 | 356 | 36 | 914 | 40 |
| SR1448C | SR1448S | 153 | 69.4 | 14 | 356 | 48 | 1219 | 50 |
| SR1460C | SR1460S | 190 | 86.2 | 14 | 356 | 60 | 1524 | 60 |
| SR1472C | SR1472S | 545 | 247.2 | 14 | 356 | 48 | 1219 | 80 |
